26 lakásos, liftes, A+ energetikájú projekt – 2026 év végi átadással!
Nyíregyháza belvárosának legújabb, legmodernebb lakófejlesztése épül Nyíregyháza belvárosában, ahol a városi életstílus, a luxus és az energiahatékony technológia találkozik.
A projekt a belvárosi ingatlanpiac kiemelt fejlesztése — biztonságos, értéktartó befektetés azoknak, akik a kényelmet és minőséget keresik.
Lakások jellemzői:
26 modern lakás – 35 és 74 m² között
Változatos alaprajzok: nappali + 1 vagy 2 szoba, teraszokkal.
2 szintes teremgarázs – 26 parkolóhellyel
Külön megvásárolhatók, most kedvezményes áron.
A+ energetikai besorolás
– Hőszivattyús fűtés-hűtés
– Alacsony üzemeltetési költség
– Korszerű épületgépészet
Prémium kivitelezés
– magas minőségű anyagok
– modern belső terek
– elegáns előcsarnok
– tárolók + iroda a földszinten
Lift a maximális kényelemért
Projekt ütemezés:
Építés kezdete: 2025 nyara
Várható átadás: 2026 év vége
Jelenleg elérhető lakások:
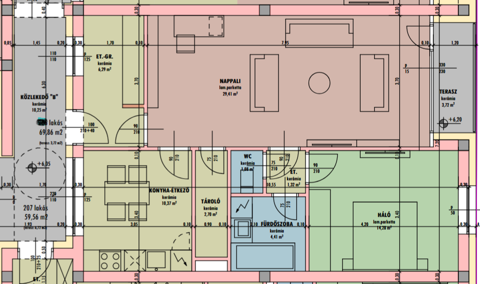
I. emeleten két lakás:
1. Lakás méret: 58,78 m²
• Terasz: 6,89 m²
• Elrendezés: nappali + 2 szoba
• Tájolás: déli, belső udvar
• Ár: 62,225 millió Ft
2. Lakás méret: 59,56 m²
• Terasz: összesen 6,72 m² (3,91 + 2,81 m²)
• Elrendezés: nappali + 2 szoba
• Ár: 62,92 millió Ft
II. emelet
• Méret: 49,07 m²
• Terasz: 3,72 m²
• Elrendezés: nappali + 1 szoba
• Ár: 56,023 millió Ft
III. emelet
• Méret: 53,25 m²
• Terasz: 23,85 m² (!) – nagy, panorámás
• Elrendezés: nappali + 2 szoba
• Ár: 65,175 millió Ft
Jelenleg elérhető teremgarázsok – AKCIÓS ÁRON:
– Alagsor – 13 m²
9,1 MFt + ÁFA helyett → 7,8 MFt + ÁFA
– Alagsor – 16 m²
11,2 MFt + ÁFA helyett → 9,6 MFt + ÁFA
– Földszint – 25,5 m²
17,29 MFt + ÁFA helyett → 13,375 MFt + ÁFA
– Földszint – 16,1 m²
11,27 MFt + ÁFA helyett → 8,560 MFt + ÁFA
Érdeklődni: 06/30-156-7110
Belváros szívében, mégis csendes elhelyezkedés, Modern építéstechnológia – A+ energetika, Letisztult, városi életérzés, Nagy teraszos lakások, Biztonságos, értéktartó befektetés, Kedvezményes teremgarázs árak!





