Nyíregyháza–Nyírszőlős egyik kedvelt környezetében kínálunk megvételre egy igényesen megtervezett, új építésű családi házat, amely a modern építészeti megoldásokat a praktikus, élhető térkialakítással ötvözi.
Az ingatlan ideális választás mindazok számára, akik csendes, rendezett környezetben szeretnének élni, mégis fontos számukra a város közelsége és a mindennapi kényelem.
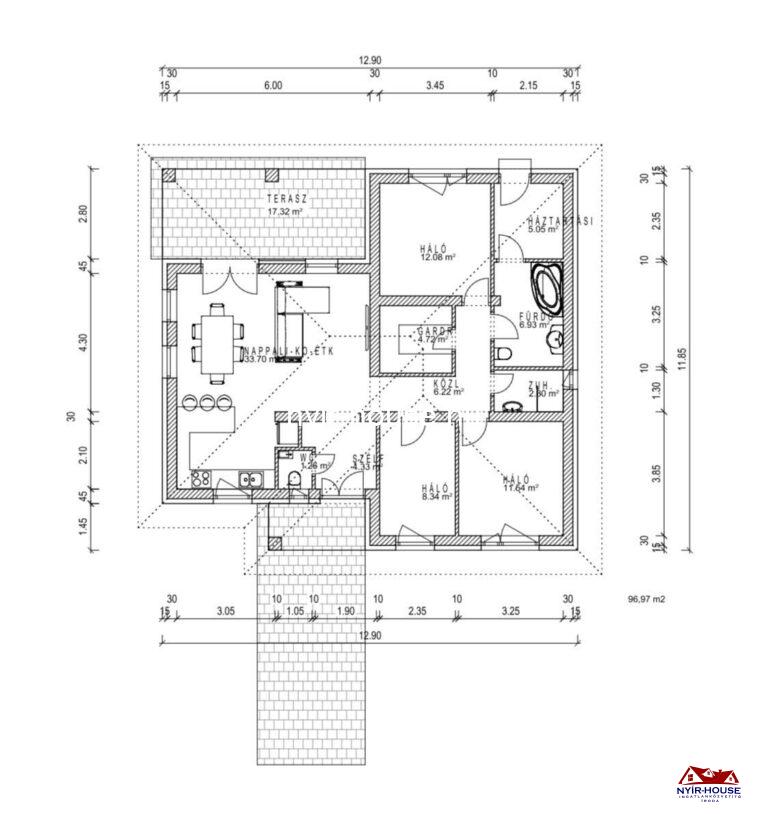
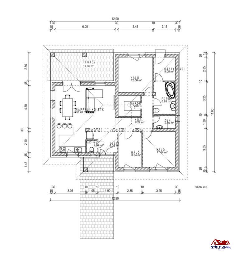
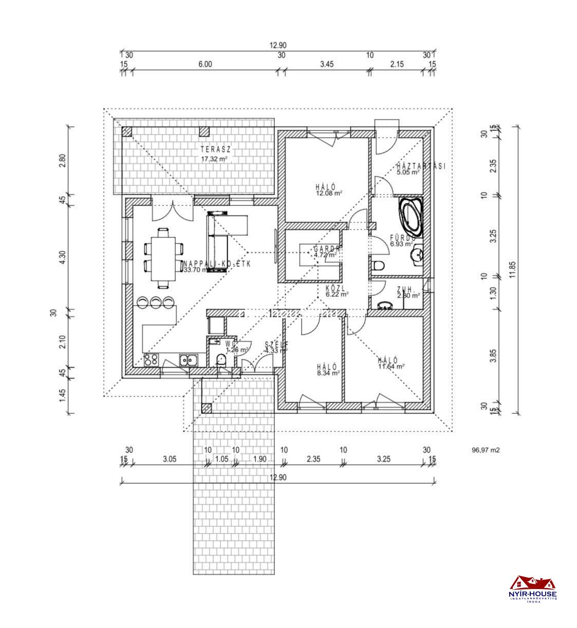
A 97 m²-es lakótér központi eleme a világos, tágas nappali–konyha–étkező, amelyet a nagyméretű üvegfelületek természetes fénnyel töltenek meg, kellemes és barátságos atmoszférát teremtve. A nappaliból közvetlen kapcsolat nyílik a 17 m²-es fedett teraszra, amely tökéletes helyszíne lehet meghitt reggeli kávéknak, családi ebédeknek vagy baráti összejöveteleknek a kert közelségében.
Az ingatlan három külön nyíló hálószobával rendelkezik, amelyek nyugodt és privát életteret biztosítanak a család minden tagja számára. A szülői hálószobához külön gardrób kapcsolódik, amely elegáns és praktikus tárolási lehetőséget kínál. A mindennapi kényelmet tovább fokozza a külön kialakított fürdőszoba és zuhanyzó, valamint egy 5 m²-es háztartási helyiség, amely a háztartási tevékenységek számára biztosít rendezett teret.
A tervezés során kiemelt figyelmet kapott, hogy a közösségi élettér és a pihenést szolgáló hálórész jól elkülönüljön, így az otthon egyszerre kínál tágas, élettel teli tereket és zavartalan nyugalmat.
Ez az ingatlan kiváló lehetőség azok számára, akik modern, igényes otthont keresnek Nyíregyháza egyik dinamikusan fejlődő, családbarát városrészében, ahol a kertvárosi hangulat és a minőségi élettér harmonikusan találkozik.
Főbb jellemzők:
• 97 m² lakótér
• 17 m² fedett terasz
• tágas nappali + konyha + étkező nagy üvegfelületekkel
• 3 hálószoba – jól elkülönülő nappali és privát lakórész
• szülői háló gardróbbal
• külön fürdő és zuhanyzó
• 5 m² háztartási helyiség
• Fűtésrendszer: hőszivattyú, padlófűtés hőleadással
Amennyiben az ingatlan felkeltette érdeklődését, keressen bizalommal!


