Nyíregyháza egyik csendes, mégis könnyen elérhető városrészében Nyírszőlősben eladó ez az amerikai stílusban tervezett, új építésű családi ház. A modern otthon letisztult formáival, tágas tereivel és igényes kivitelezésével kínál kényelmet és nyugalmat leendő tulajdonosainak.
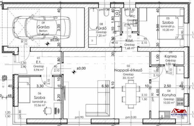
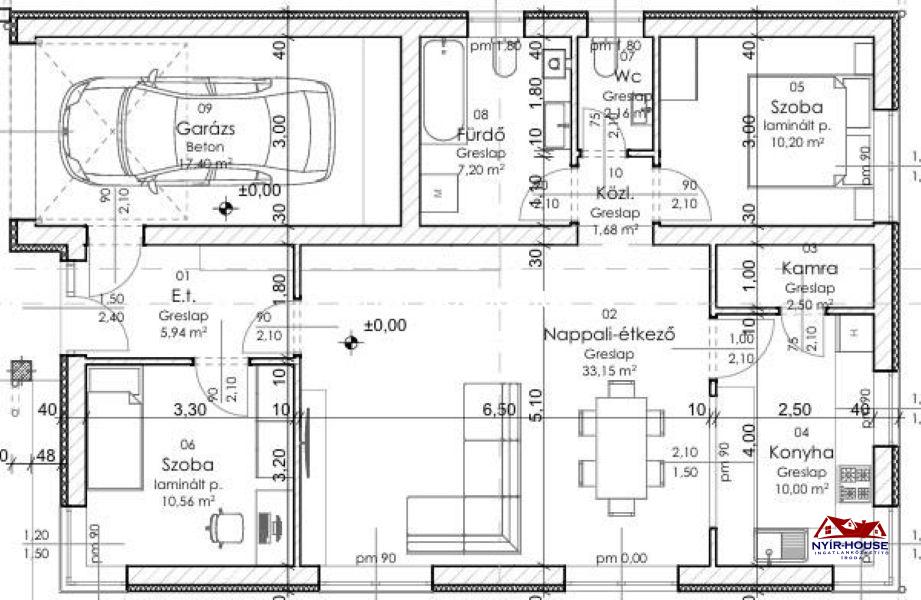
A 100,8 m²-es ház nappalival, két hálószobával és garázzsal biztosít praktikus elrendezést a 901 nm-es telken. Minden helyiségben padlófűtés gondoskodik a kellemes hőérzetről, amelyet hőszivattyú működtet. A ház 2026 tavaszára készül el, így a belső burkolatok és szaniterek még választhatók, az alaprajz pedig igény szerint alakítható.
Az amerikai stílusnak köszönhetően a belső terek világosak és nyitottak, a ház pedig a 2025-ös energetikai előírásoknak megfelelően épül. A közel 1000 m²-es kert bőséges teret kínál kertészkedéshez, családi kikapcsolódáshoz vagy akár egy medence kialakításához. A nyugodt, zöldövezeti környezet vonzóvá teszi ezt az otthont párok, kisebb családok és idősebbek számára is.


