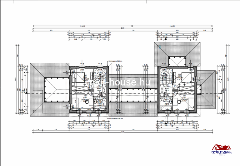
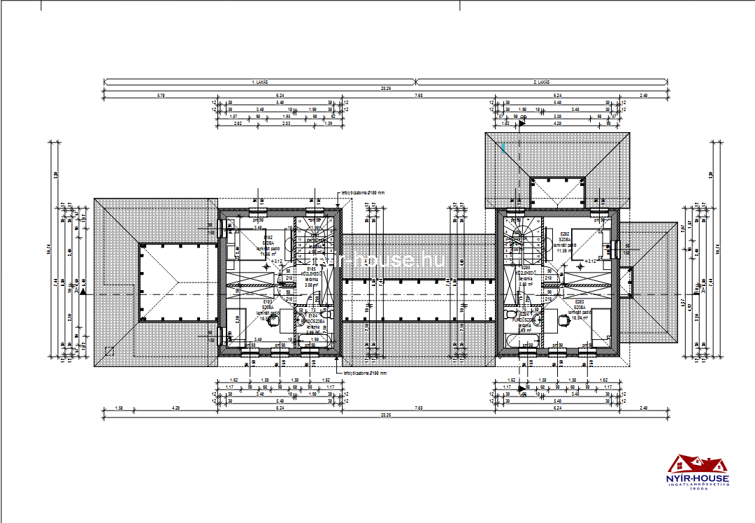
Nyírszőlős egyik kedvelt utcájában eladó új építésű, mediterrán hangulatú, garázsnál érintkező ikerház, így minden tekintetben megőrzi a privát életteret és a nyugodt otthoni légkört. Az ingatlanok egyenként 100 illetve 115 négyzetméteres alapterülettel készül, két fürdőszobával, három hálószobával és tágas nappali, amerikai konyha–étkezővel.
A házak 30-as porotherm téglából épülnek, 15 centiméteres szigeteléssel, padlófűtéssel, modern klímával és rendkívül alacsony fenntartási költséggel, így hosszú távon is kényelmes, gazdaságos választást jelentenek. A 394 négyzetméteres telek ideális méret a nyugodt, otthonos kert kialakításához, akár családok, akár párok számára.
Az ingatlanok tervezetten 2026 év végén kerülnek átadásra, így van lehetőség előre megtervezni és egyedivé tenni az új otthont azoknak, akik időben lefoglalják.








