Nyírszőlős egyik csendes utcájában, erdőszomszédos környezetben eladó egy 2000 m²-es telken elhelyezkedő, összesen 210 m² alapterületű, téglaépítésű, szigetelt, kiváló állapotú családi ház. Az ingatlan 2018-ban épült, saját részre készült, így a tervezés és a kivitelezés során minden a kényelmet, a minőséget és a hosszú távú fenntarthatóságot szolgálja.
A lakótér hasznos alapterülete a galériával együtt 150 m², amely tágas, világos élettereket biztosít. Az amerikai konyhás nappaliban kandalló található, hűtő-fűtő klíma, innen közvetlen teraszkapcsolat nyílik egy fedett teraszra, amely ideális helyszíne a pihenésnek, grillezésnek vagy baráti, családi összejöveteleknek. A nappalihoz kapcsolódó galéria jelenleg vendégszobaként funkcionál, a család nyugodt pihenését három hálószoba szolgálja . A szülői hálószobához közvetlenül kapcsolódó fürdőszoba kád és zuhanyzós kialakítású, valódi kényelmet nyújtva. A gyermekek számára külön, zuhanyzós fürdőszoba áll rendelkezésre.
A gépesített, beépített konyha praktikus és esztétikus megoldást kínál a mindennapokban. Az ingatlan fal fűtés-hűtés rendszerrel ellátott, amely egyenletes hőérzetet és csendes működést biztosít egész évben.
Az alagsor alapterülete 76,61 m², ahol wellness funkciók és kiszolgáló terek kaptak helyet. Itt található a szauna, zuhanyzó, mosdó, egy szoba, ami akár vendégszobaként is funkcionálhat, valamint a kétállásos garázs. Az alagsor kialakítása lehetővé teszi egy önálló lakrész létrehozását.
A parkosított udvar automata öntözőrendszerrel ellátott, a fedett medence tökéletes a nyári pihenéshez, igény szerint a napelem rendszerhez csatlakoztatva fűthetővé tehető. Az ingatlan kiemelkedően energiatakarékos: a 16 kW-os napelemrendszer és a Daikin hőszivattyú rendkívül alacsony rezsiköltséget eredményez, így a családi ház fenntartása minimális.
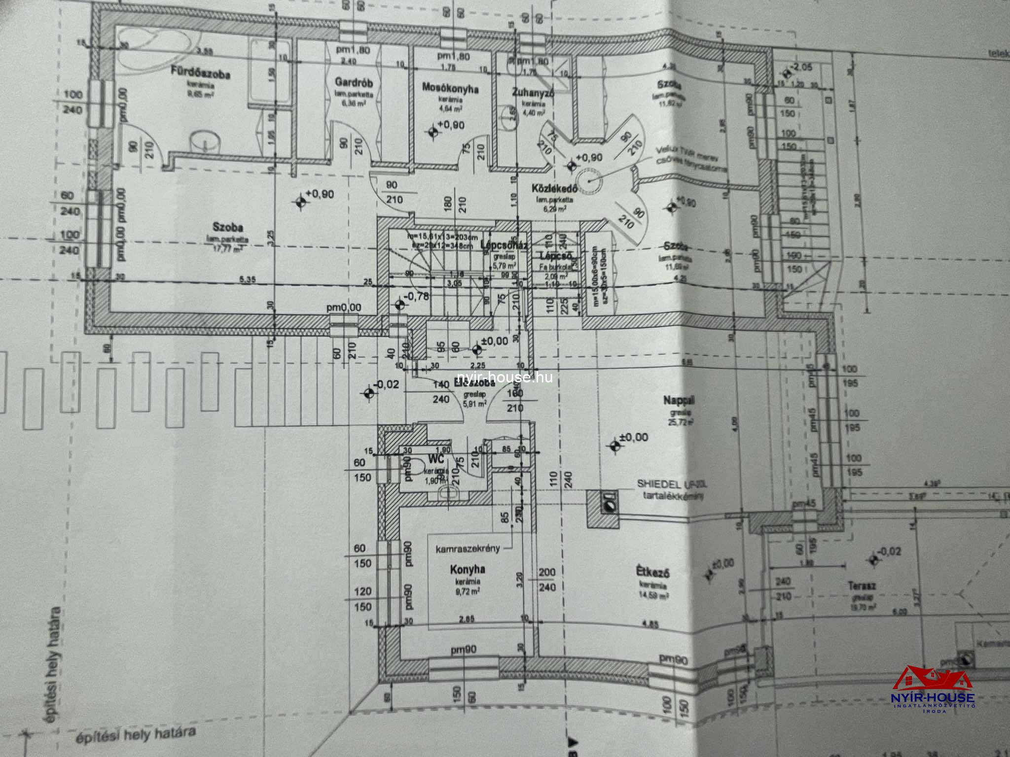
A tulajdonos kérésére az ingatlan jelenleg kizárólag alaprajzokkal kerül meghirdetésre. Komoly érdeklődés esetén a fotókat szívesen küldök e-mailben.
Ha felkeltette érdeklődését ez a különleges ingatlan, örömmel válaszolok kérdéseire.
Várom hívását, hogy személyesen is megmutathassam ezt a különleges otthont!


