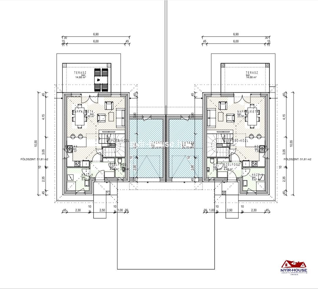
Nyíregyháza – Oros egyik csendes, kedvelt utcájában épül ez a különleges megjelenésű modern ikerház, amely tökéletes választás lehet családok számára.
A ház egyik nagy előnye, hogy az ikerház csak a garázsnál ér össze, így szinte önálló családi ház érzetét nyújtja.
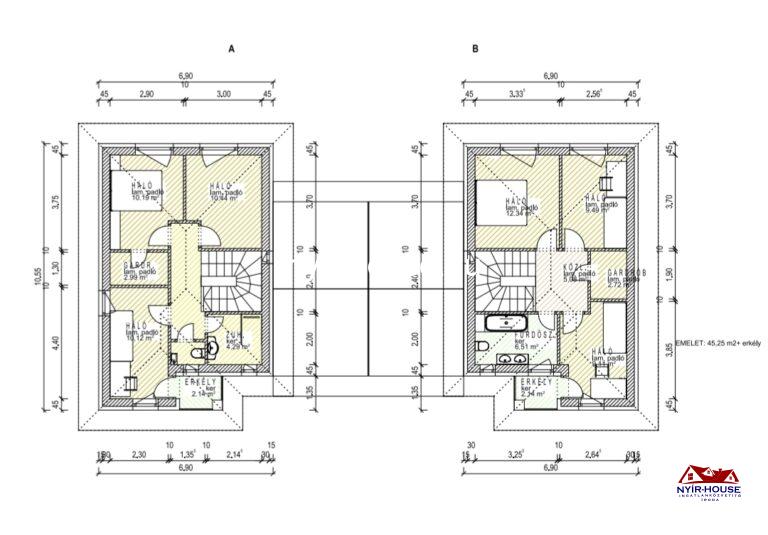
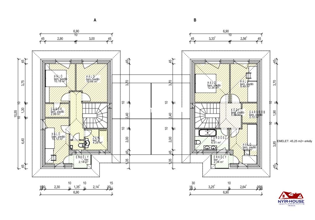
Műszaki tartalom
Ha ismer valakit, aki új otthont keres Nyíregyházán, küldje tovább neki ezt a lehetőséget!




