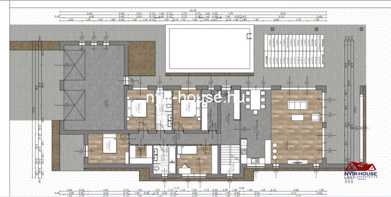
Nyíregyháza új építésű, dinamikusan fejlődő lakóövezetében Sándor fantázia névre hallgató 286 nm-es, 5 hálószoba, nagy nappali, amerikai konyha, étkező, 2 db fürdő toalettel, gardrób, kamra elrendezésű, 1002 nm-es telken, 21. századi technológiával készülő Liapor ECO készház eladó!
Műszaki tartalom:
Az emelt fűtéskész ár tartalmazza:
•változtatások nélküli terv adaptációt (az esetleges változtatások extra költségeket jelenthetnek)
•szigetelt lemezalapot,
•a külső és belső liapor falakat 275 cm-es panelmagassággal,
•elektromos kiállások előkészítései
•vízvezetékek helyének horonymarásai
•tetőszerkezetet, (szeglemezes rácsos tartós szerkezet) 25 fokig
•tető héjazatot (betoncserép borítással, Bramac Római Novo)
•tetőcserepezést és bádogozást
•a külső 20 cm-es fehér EPS szigetelést (U=min. 0,17)
•színezést fehér színre 1,5 mm-es szemcsenagyságú dörzsölt vakolattal (Polifarbe)
•ereszcsatornát a tető héjazattal egyező színben
•nyílászárókat, (kívül színes belül fehér színben, 3 rétegű üvegezéssel, 6 légkamrával U=0,6W/nm*K)
•1 db bejárati ajtót katalógusból
•1 db bukó/toló ajtó 3 méter szélességig
•e-napló vezetését
•villanyszerelés helyiségenként 5 kiállással, szerelvényezéssel
•vízvezeték alapszerelést
•beépíthető wc-k vázát, szerelvényeit (nyomógomb, wc csésze és ülőke nélkül)
•gipszkarton álmennyezet egy réteg kartonnal
•fújt cellulóz födém hőszigetelés 30 cm vastagságban
•aljzat betonozás 5 cm vastagságig
•szabadon választott fűtés 3.500.000 ft nettó összegig (elektromos padlófűtés + napelem vagy levegő/víz hőszivattyús padlófűtés vagy levegő/levegő hőszivattyús fűtés vagy mennyezetfűtés
Nem könnyűszerkezet! A kivitelezés időtartama kulcsrakészen 6-8 hónap!
KIMAGASLÓ MŰSZAKI tartalom! MINŐSÉGI anyagfelhasználás! Banki finanszírozás és engedélyeztetés szempontjából is teljes értékű masszív ház! A kivitelezőnek sok referencia háza megtekinthető, és igény szerint megrendelésre bárhol megépíthető!
A képek illusztrációk, a látványterveken módosítási lehetőség adott! A szerződésben foglalt árakat, időpontokat garantáljuk! 30 év jótállás a szerkezetre (Praefa dán tulajdonú cég terméke, jótállása)! 5 év garancia a teljes generál kivitelezésre!














