Nyíregyháza – Oros egyik csendes, rendezett és közkedvelt utcájában kínálunk megvételre egy különleges hangulatú, modern megjelenésű ikerház egyik felét, amely letisztult építészeti stílusával és korszerű műszaki tartalmával ideális választás lehet mindazok számára, akik egy élhető, családbarát otthont keresnek hosszú távra.
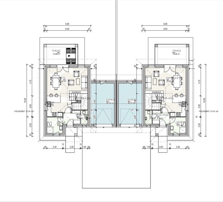
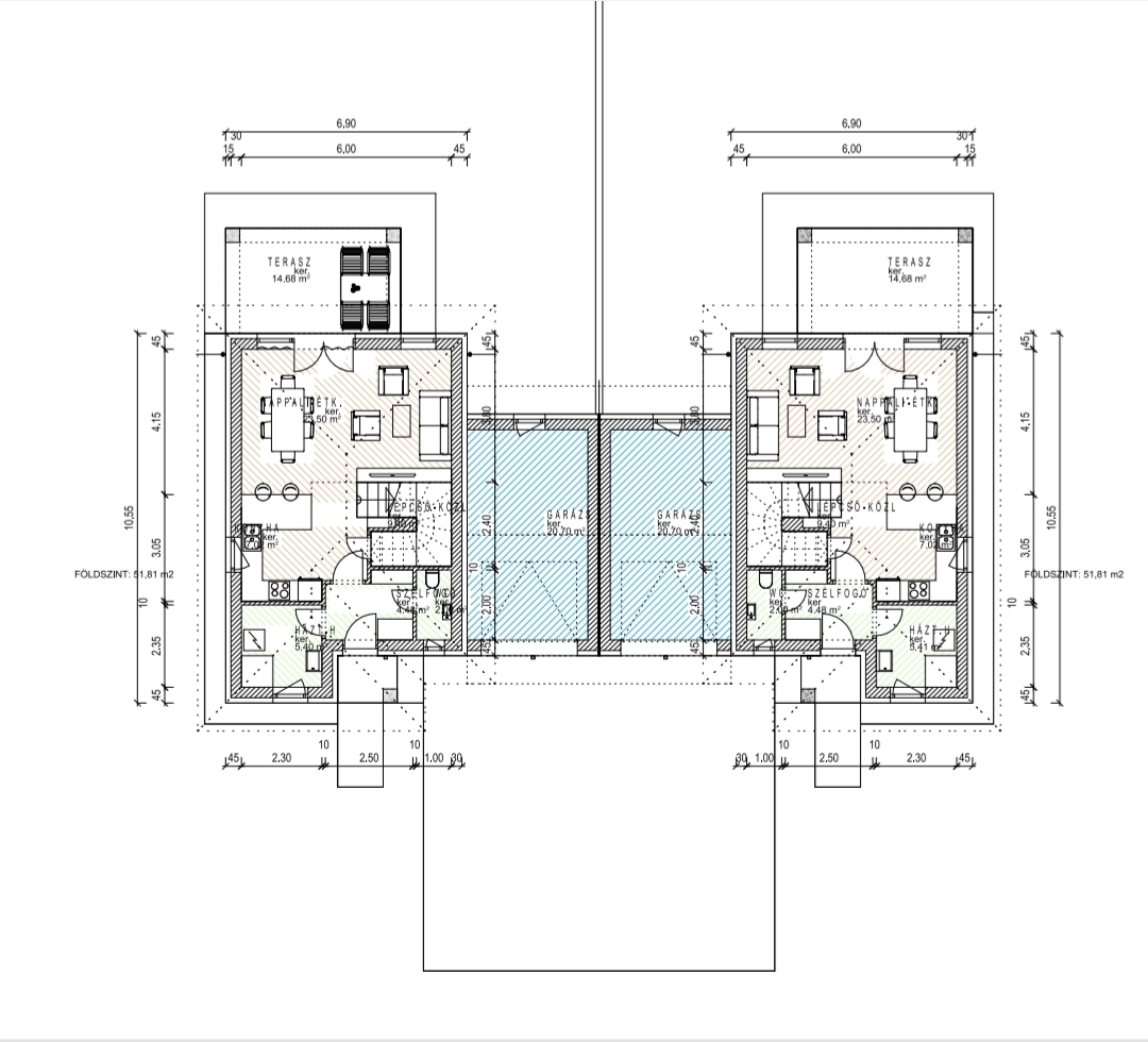
Az ingatlan 125 m²-es kétszintes lakótérrel rendelkezik, ahol minden helyiség a komfortos mindennapokat szolgálja.
A ház szívét egy világos, tágas amerikai konyhás nappali és étkező alkotja, amely közvetlen kapcsolatban áll a kerttel és a 15 m²-es terasszal, így ideális helyszíne lehet családi pillanatoknak vagy baráti összejöveteleknek.
Ezen a szinten kapott helyet még:
háztartási helyiség
vendég WC
21 m²-es garázs
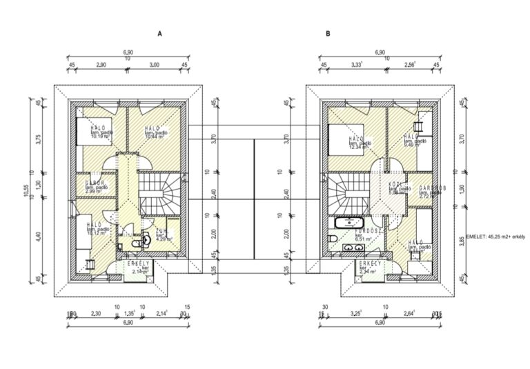
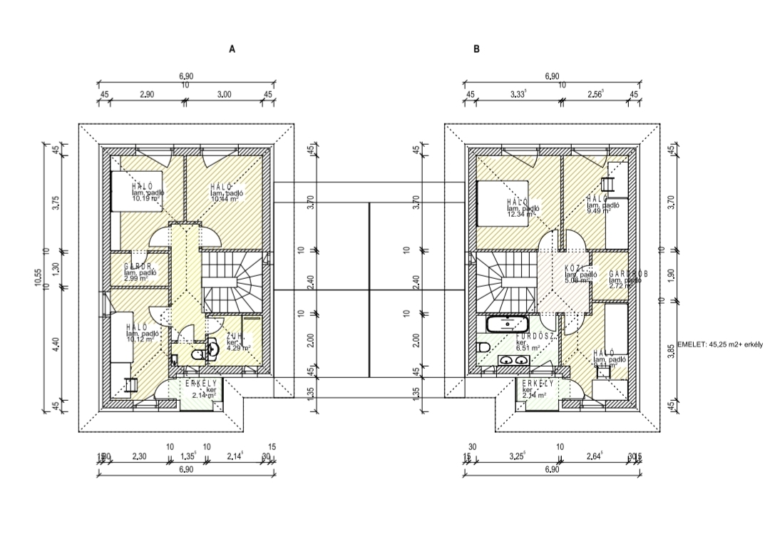
Emelet – a nyugalom szintje
Az emeleti rész a pihenésé és a privát élettéré:
3 külön nyíló hálószoba
gardrób
fürdőszoba, WC
Az ingatlan egyik legnagyobb előnye, hogy a két lakóegység csak a garázsnál kapcsolódik, így a ház szinte teljesen önálló családi ház érzetét nyújtja.
Az ikerfélhez 450 m²-es saját telekrész tartozik, térkövezett járdával és térkövezett kocsibeállóval.
Az ingatlan modern, energiatakarékos műszaki megoldásokkal épül: 30 cm téglafalazat, 15 cm homlokzati szigetelés, hőszivattyús fűtési rendszer, teljes körű klimatizációval rendelkező lakótér, 3 rétegű műanyag nyílászárók.
A korszerű technológia nemcsak kényelmet, hanem kedvező fenntartási költségeket is biztosít.
Ez az ingatlan kiváló választás lehet fiatal családoknak, első otthont keresőknek, azoknak, akik modern környezetben, mégis nyugodt utcában szeretnének élni.
Amennyiben felkeltette érdeklődését ez a modern és különleges otthon, keressen bizalommal!



